Offers Considered
Seize this rare opportunity to secure a large vacant parcel of land in a premium coastal location. Spanning approximately 923sqm, this northeast-facing block offers elevated views over the picturesque Wallis Lake - the ideal canvas for creating your dream residence or a standout holiday home.
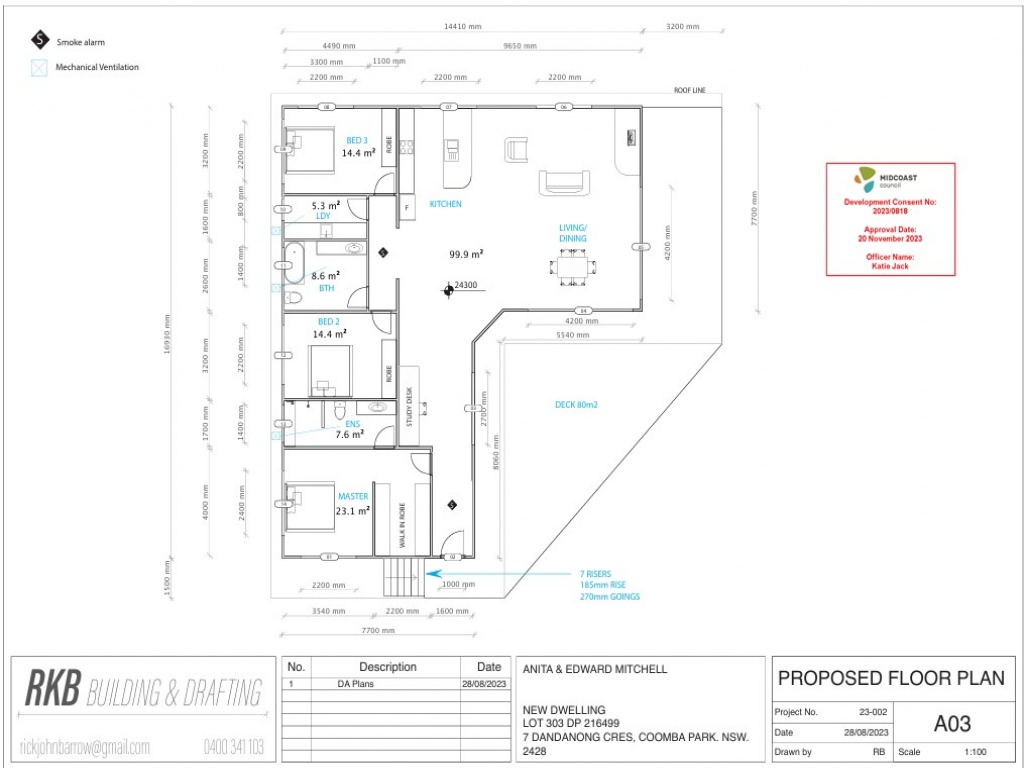
With DA approval (Nov 2023) already in place for a stylish 3-bedroom, 2-bathroom home, this block is primed for immediate development. Whether you're an owner-occupier or investor, this site delivers exceptional potential and lifestyle appeal.
Property Highlights:
Generous 923sqm block with a desirable northeast aspect
DA approved plans for a 3-bed, 2-bath home
Elevated position offering views of Wallis Lake
Zoned RU5 Village
Approx 270m to waterfront reserve
Close to iconic coastal destinations including Blueys & Boomerang Beaches
Power nearby and NBN available
Create a coastal retreat or a forever home in one of the region's most sought-after settings. Don't miss this chance to build your vision in an unbeatable lakeside location.
To arrange an inspection or for more information, please call James Murphy on 0433 289 062 or the team at Coastal Realty.
We have obtained all information in this document from sources we believe to be reliable, however, we cannot guarantee its accuracy. Prospective buyers are advised to carry out their own investigations. Some photos may be location shots only and not represent views of or from the property.







